Cabinets
Accurate measurements are the most critical part of the online ordering process.
All measurements should be in inches (within 1/4" accuracy).
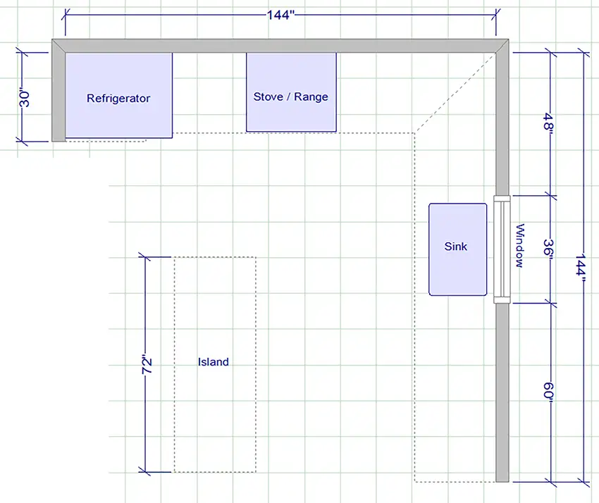
Review the example image below.
We need to know the full length of all walls. (Both walls in the example are 144")
If you have a window:
- we need to know the window width (The window in the example is 36" wide)
- the distance from the nearest wall corner to the window's edge (The distance from the corner to the left window edge in the example is 48")
Repeat this for every window in your kitchen layout.
If you intend to have an island, send us the desired island length. (The island length in the example is 72")
Mark on the sketch where the appliances and sink are located.

Example Kitchen Layout with Measurements
In addition to the layout with measurements, we will also need to know the following information (in inches):
- Ceiling Height
- Range/Stove Width or Cooktop Width
- Refrigerator Width
- Dishwasher Width
If you already have a kitchen sink, we will need to know the sink model #.
If you need additional guidance on how to measure your kitchen, please send wide angle photos of your kitchen as seen below.
We will add guidance to your photos showing you what needs to be measured.
A: ceiling height
B: distance from edge to wall corner

C: distance from wall corner to left door frame edge
D: distance from wall corner to left window edge
E: window width
